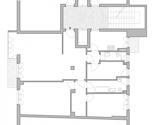
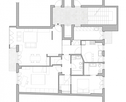
Un appartamento in un classico edificio degli anni 60, caratterizzato da ambienti e bagni stretti e lunghi e cucina relegata nella zona di servizio, ben separata dagli spazi principali della casa. L’intervento modifica radicalmente l’assetto della zona servizi, ricavando un bagno cieco nella fascia centrale dell’alloggio a favore della cucina, ora illuminata da due finestre e in continuità visiva con la zona giorno. Una boiserie su disegno ingloba un capiente armadio e le porte di accesso alla cucina e alla lavanderia, unendo spazialmente i due versanti, un tempo separati, dell’appartamento.
Progetto e D.L.:
Arch. Roberta Contrino
Arch. Andrea Incerti
Impresa:
Edilmerisio
SUPERFICIE
118 mq
DATA REALIZZAZIONE:
2011-2012
![]()
Via Francesco Soave, 9 – Milano
Tel 02.45471722
info@esecon.com








