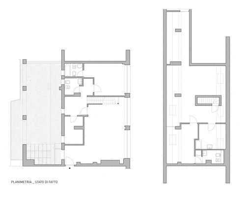
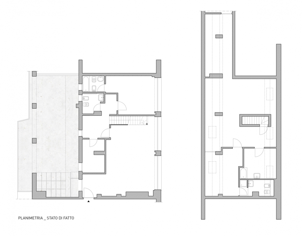
Un appartamento su due livelli, al 6 e 7 piano di un edificio degli anni 70 in zona Vetra – Porta Genova, con una splendida vista verso Duomo- Torre Velasca e un grande terrazzo vivibile esposto a sud ovest. Disabitato per anni, l’appartamento all’atto dell’acquisto si presentava seriamente ammalorato. In particolare il piano sottotetto, reso abitabile tramite condono nei primi anni ‘80, presentava problemi di infiltrazioni dalla copertura e di malfunzionamento dell’impianto idrico e termico. L’intervento ha quindi comportato una serie di operazioni volte alla risoluzione dei problemi di abitabilità primaria dei locali.
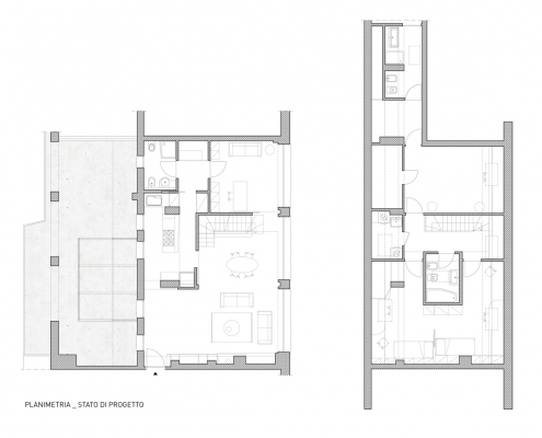
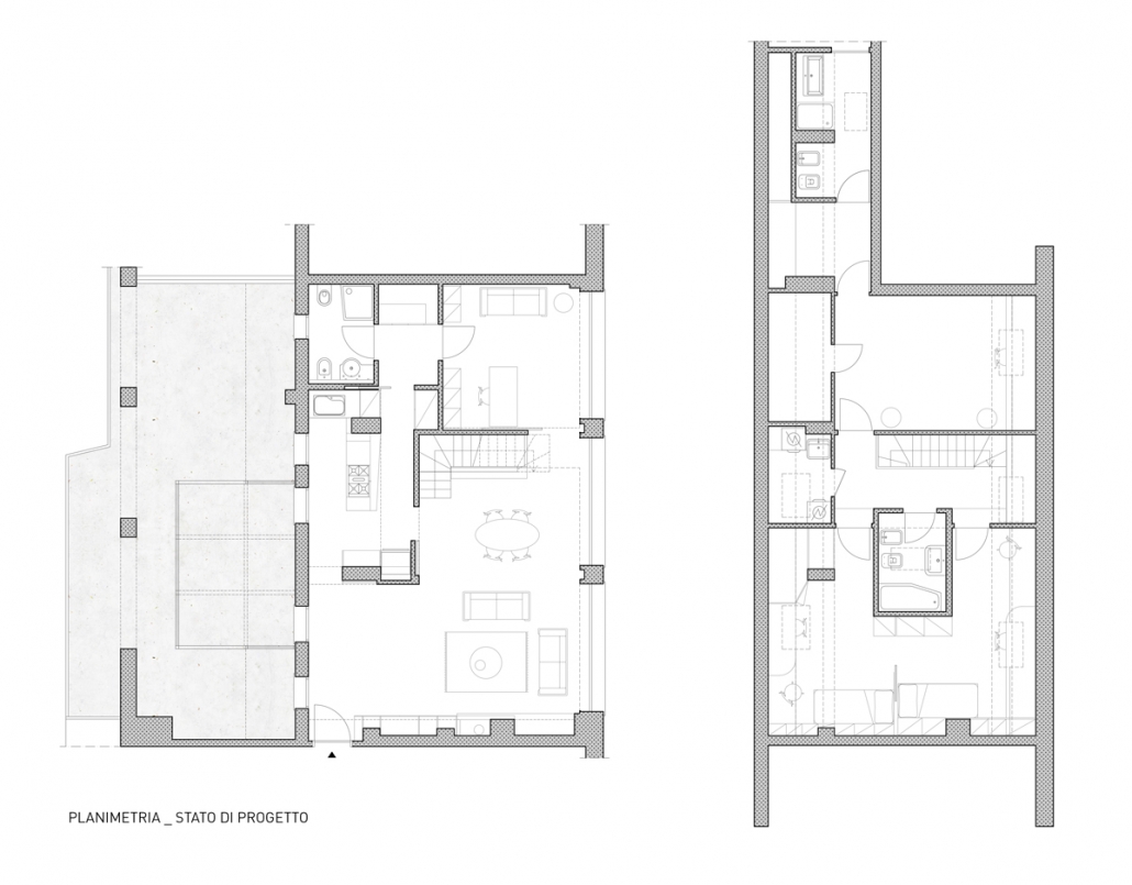
La distribuzione originaria degli ambienti, condizionata da una disposizione infelice degli elementi strutturali, frammenta gli spazi di servizio rivolti verso il terrazzo in una serie di piccoli ambienti comunicanti tramite disimpegni, separando completamente il soggiorno dal terrazzo. Il tema dell’intervento si è condensato dunque nella fluidità degli ambienti giorno, quasi tutti passanti ma facilmente isolabili tramite porte/parete nascoste. Sono state privilegiate le viste passanti attraverso la profondità del corpo di fabbrica, così da accentuare la grande luminosità degli ambienti e da dilatarne le dimensioni. Una serra sul terrazzo rende abitabile la cucina allungata ricavata tra le colonne portanti. La parete a destra dell’ingresso, caratterizzata da numerose lesene corrispondenti a strutture e impianti, viene attrezzata con elementi contenitori, un camino funzionante e una panca di appoggio per tv, il tutto ricomposto in un disegno unitario ma articolato. La scala di collegamento con la nuova zona notte al piano superiore, completamente ridisegnata nel suo sviluppo, si svolge attorno ad una libreria su disegno che funge anche da parapetto e cela nell’intradosso della rampa un grande ripostiglio.
Al piano superiore sono state ricavate due camere passanti per le figlie, una master bedroom con annesso bagno e cabina armadio, e una piccola lavanderia. I nuovi bagni sono illuminati zenitalmente grazie all’apertura di due finestre da tetto.
Progettisti:
Arch. Roberta Contrino
Arch. Andrea Incerti
Impresa
Edil Idraulica 3 Enne di Nocenti Alberto
Superficie:
160 mq; terrazzo 59 mq
Realizzazione:
2011 -2012
![]()
Via Francesco Soave, 9 – Milano
Tel 02.45471722
info@esecon.com
















