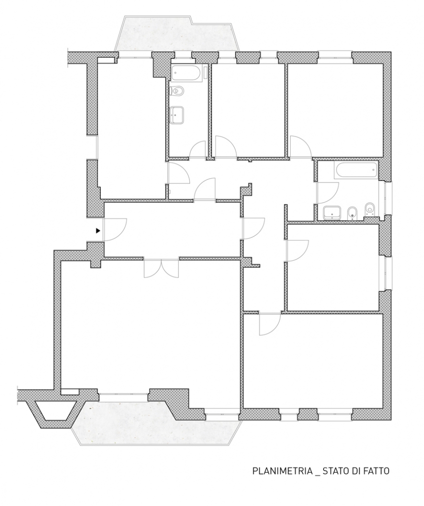
Un appartamento di discreta metratura in un condominio fine anni 60 nella periferia sud di Milano, in un quartiere ormai consolidato, ambito per l’elevata presenza di verde. L’appartamento non presenta in origine elementi di particolare valore e la pianta è schematicamente suddivisa in zona giorno/cucina e servizi/notte tramite disimpegni angusti e tante porte. I nuovi proprietari, una giovane coppia con due bambini richiedono una disposizione meno rigida degli ambienti, tre camere, un piccolo studio, una lavanderia. Il progetto modifica totalmente la zona ingresso soggiorno e la cucina, accentuando l’apertura di quest’ultima verso il living attraverso l’utilizzo di pannelli parete vetrati e modificandone la geometria: l’utilizzo di direttrici non ortogonali alle pareti perimetrali permette di ampliare la cucina a scapito dei locali di servizio e introduce inoltre un nuovo dinamismo all’intera pianta. Il nuovo assetto distributivo permette di ricavare la lavanderia e spazi di stivaggio nella fascia centrale dell’appartamento non illuminata. La boiserie su disegno cela un armadio e l’ingresso alla zona notte, donando omogeneità e rigore allo spazio.
Le scelte materiche e di arredo rispettano i gusti e le preferenze dei committenti, composte in un insieme coerente e ragionato.
Progettisti:
Arch. Roberta Contrino
Arch. Andrea Incerti
Impresa
Edilmerisio
SUPERFICIE
118 mq
Realizzazione:
2013
![]()
Via Francesco Soave, 9 – Milano
Tel 02.45471722
info@esecon.com








