Concorso nazionale per la progettazione del “comparto A” della città di Montesilvano
Il concorso indetto nel 1992 aveva come tema la riqualificazione del centro di Montesilvano in provincia di Teramo.
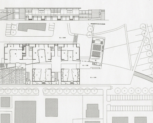
Gli edifici e gli spazi pubblici coinvolti si trovano nell’area limitrofa al municipio del Comune e il mercato coperto.
Il progetto cercava di unificare gli spazi pubblici che delimitavano l’area , cercando di ritrovare ,attraverso l’uso di una pavimentazione comune ad uso pedonale, un dialogo interrotto tra il municipio, la biblioteca , la scuola e il mercato comunale coperto.
Il percorso unificante trovava la sua appendice con il collegamento mediato attraverso un ponte pedonale verso l’area ad ovest dove è presente un parco pubblico potenzialmente dedicato ad impianti sportivi.
L’operazione piu importante all’interno del progetto è rappresentata dalla demolizione di uno dei “padiglioni”antistanti il mercato per includere nello spazio pubblico una zona inclusiva interna dell’edificio che è di fatto priva di un ingresso rappresentativo e riconoscibile.
Pogettisti
arch. Cino Zucchi capogruppo
arch. Rodolfo Bandera
arch. Giovanni Buzzi
arch. Paolo Giuliano
arch. Andrea Incerti
arch. Martino Rostan
arch. Fabio Tosi
arch. Paolo Mistrangelo (consulente urbanistico)
arch. Chiara Scortecci (cosulente per il paesaggio)
partecipazione
1992
![]()
Via Francesco Soave, 9 – Milano
Tel 02.45471722
info@esecon.com





