FOTO TRATTE DALLA RIVISTA “CASAFACILE” – N°3 del MARZO 2004
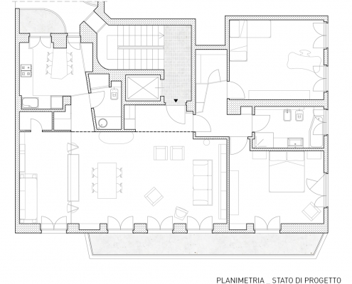
Un appartamento di circa 90 mq in un edificio fine anni 50 affacciato sul Parco delle Basiliche. In questo caso la bella visuale verso il parco e la Cappella Portinari richiede interventi minimali, che si traducono nella trasformazione in porte finestre di due serramenti nel soggiorno e nel ripensamento della zona cucina servizi. Il soggiorno viene ampliato inglobando la preesistente camera di servizio; viene individuata una zona studio tramite un mobile contenitore “trasformista”, che diventa protagonista nello spazio fungendo da elemento di connessione/separazione tra i due ambienti, dotando inoltre lo studio di un grande scrittoio e la zona pranzo di un fondale ad effetto. Ancora una volta, si sceglie di destinare la fascia più interna dell’appartamento ai servizi e alle attrezzature di contenimento, liberando gli affacci per gli spazi abitati; la cucina viene connessa visivamente al soggiorno mediante un passaggio canalizzato che inquadra una finestra. L’utilizzo di tre finiture ricorrenti: laminato color vinaccia, laccato 9010 e legno di rovere permette di omogeneizzare il carattere degli ambienti, accentuando la fluidità e annullando le usuali gerarchie funzionali. Diversi complementi di arredo sono su disegno ad hoc.
Progettista e direzione lavori:
Arch. Roberta Contrino
Arch. Andrea Incerti
Impresa:
Trenne, geom. Nocenti
realizzazione:
luglio 2000 – luglio 2002
![]()
Via Francesco Soave, 9 – Milano
Tel 02.45471722
info@esecon.com










