La via Ebro è un strada di piccolo calibro parallela alla via Ripamonti, interessata da scarso traffico veicolare locale. Tutta la zona è caratterizzata dalla compresenza di edifici residenziali per lo più di pochi piani, prevalentemente a cortina lungo le strade, e capannoni per attività artigianali molto spesso in disuso. L’intero quartiere è oggetto di una lenta e continua trasformazione, per cui i capannoni sono ristrutturati e ri-abitati nella tipologia dei “lofts” oppure sostituiti da nuovi edifici residenziali a più piani. Da segnalare a sud dell’area di intervento la presenza degli impianti sportivi della storica società “Forza e Coraggio”: un grande campo da calcio con anello per atletica, tribune, campi da tennis coperti e scoperti lasciano un’ampia visuale non interrotta da alte costruzioni e condizioni di soleggiamento ottimali al sito di progetto.
Lungo il lato nord del passaggio privato, al civico n.8 si trova l’altro complesso residenziale progettato dallo studio. L’edificio di progetto si pone in continuità con le scelte insediative e morfologiche adottate nell’intervento già realizzato.
La presenza dell’area aperta della società Forza e Coraggio e dell’edificio al civico n.8 hanno determinato il tema di progetto: definire un’area aperta e raccolta di pertinenza privata che sfrutti l’ottimo soleggiamento permesso dai contigui impianti sportivi, diversificando quindi sia planimetricamente che compositivamente gli affacci verso sud e ovest da quelli nord ed est. Nel medesimo tempo non ombreggiare né chiudere totalmente le vista verso sud dell’edificio al civico n.8
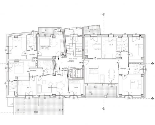
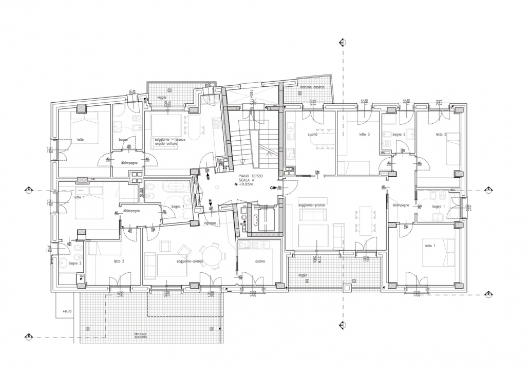
L’intervento quindi si articola in due corpi di fabbrica a formare una L, uno alto tre piani fuori terra più sottotetto parallelo alla strada privata ne definisce l’invaso; l’altro ortogonale ad essa di sei piani fuori terra più sottotetto, definisce l’area a giardino di pertinenza condominiale conferendole un carattere raccolto e luminoso allo stesso tempo, escludendo il retro di scarsa qualità architettonica dell’edificio al civico n. 12.
I fronti sud e ovest sono caratterizzati dalla profondità conferita dalle grandi aperture vetrate, logge e balconi che sfruttano le migliori condizioni di vista e soleggiamento. I fronti nord ed est sono invece scanditi da aperture ritmate di dimensioni più contenute, impaginate con pannelli metallici di colore blu, conferiscono carattere più introverso e più urbano all’intervento.
Le coperture di entrambi i corpi di fabbrica sono a falde inclinate in lastre di alluminio preverniciato, accolgono e celano alla vista i pannelli solari nel corpo alto, alcuni locali s.p.p. e un terrazzo privato aperto verso sud nel corpo basso: in questo modo il complesso conserva un profilo articolato ma non scomposto.
Il piano terra è caratterizzato da grandi varchi aperti verso il giardino intervallati da blocchi rivestiti in pietra di ceppo che ospitano vani per le funzioni e gli impianti condominiali. Varchi e blocchi sono inclinati rispetto al passaggio privato così da ottenere particolari scorci sul giardino ed orientare la circolazione pedonale a piano terra.
Progettisti:
Arch. Andrea Incerti
Arch. Roberta Contrino
Strutturista:
Ing. Marco Contrino
Ing. Giorgio Brigatti
Direzione Lavori:
Arch. Andrea Incerti
Committente:
Immobiliare VIRGILIUS srl
Impresa e impiantisti:
Edilmerisio srl
2 corpi scala / ascensore
Unità immobiliarii: n° 20 (da 2 a 4 locali)
n° box per auto 32
Progetto:
Gennaio 2008 luglio 2008
Realizzazione:
2009 – 2011
Mattoni faccia a vista per il rivestimento delle facciate, lastre di pietra naturale per le parti di zoccolatura,pavimentazione atrio in porfido e pietra d’istria, intonaco color amaranto per gli sfondati ed i terrazzi, alluminio laccato chiaro per i serramenti, persiane a tutt’altezza in duralluminio color verde salvia, parapetti in ferro verniciato e vetro, tetto in rame.
![]()
Via Francesco Soave, 9 – Milano
Tel 02.45471722
info@esecon.com





















