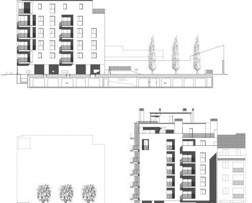
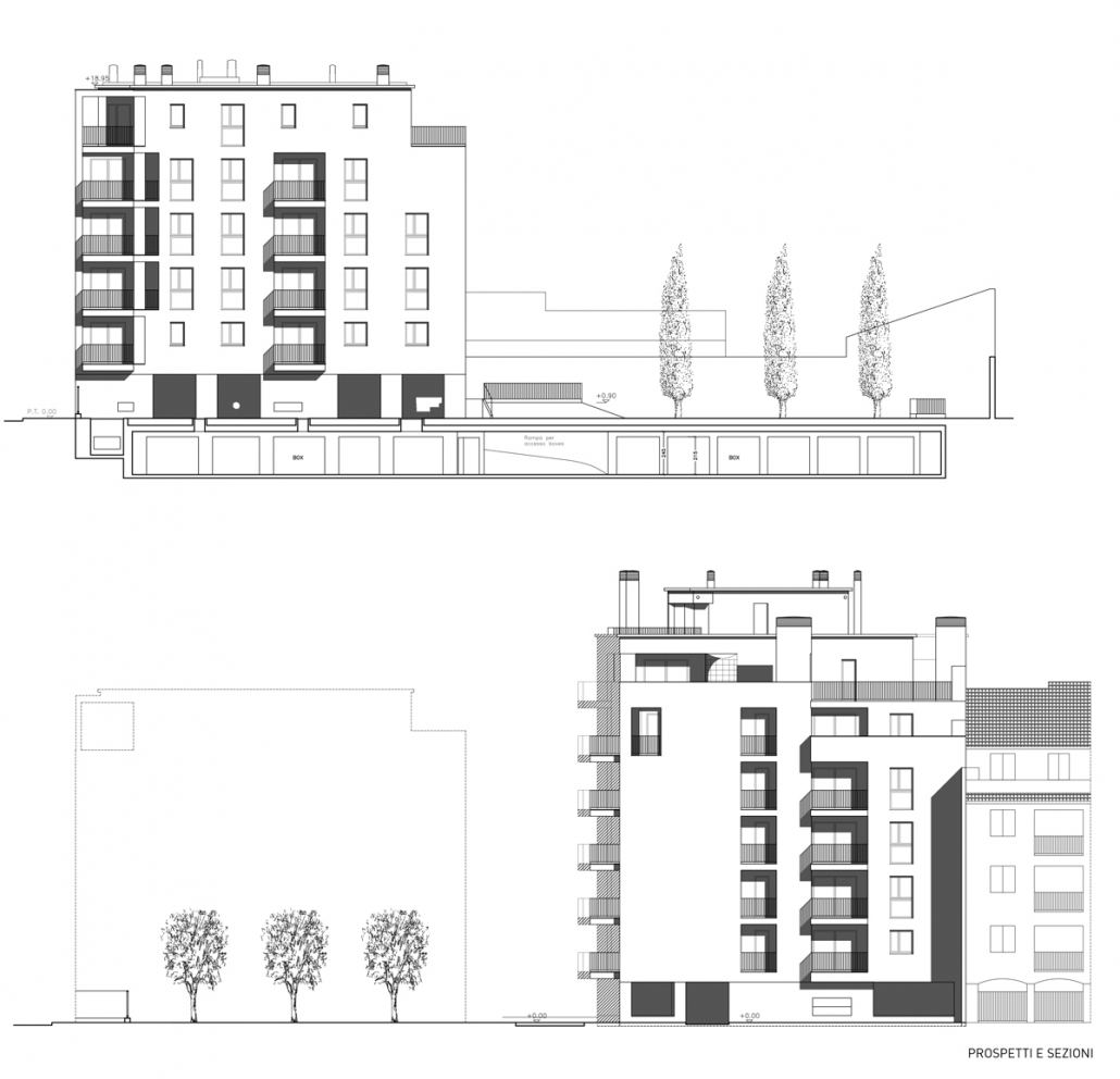
L’intervento riguarda la realizzazione di due edifici a destinazione residenziale, uno di otto piani fuori terra (edificio “A”), l’altro di cinque piani fuori terra (edificio “B”); con un piano interrato riguardante l’intera area, ad uso autorimessa e cantine.
L’edificio residenziale “A” realizzato in aderenza all’edificio esistente al numero 24 di via Zendrini, è arretrato di m. 3,90 rispetto al confine di proprietà, così da permettere la realizzazione di una zona a verde prospicente la strada. La sagoma dell’edificio articolata ad “L”, si deforma per seguire l’inclinazione della via Labus: l’edificio diviene così la testata della cortina edilizia di via Zendrini.
L’edificio residenziale “B” è stato realizzato in aderenza all’edificio esistente al numero 3 di via Labus. Anch’esso è articolato ad “L” e costituisce la testata della cortina edilizia di via Labus.
La disposizione dei due edifici e la loro conformazione permette così di mantenere libera l’area prospiciente l’incrocio tra le due strade formando un giardino ampio ed unitario affacciato sullo spazio pubblico.
L’orientamento degli edifici è tale da consentire le migliori condizioni di esposizione solare per gli ambienti.
Gli ingressi pedonali sono posizionati su via Zendrini, e su via Labus; la rampa di accesso ai boxes è addossata al frontespizio del n° 3 di via Labus in posizione poco visibile dalla strada.
L’intero complesso è stato realizzato con struttura in cemento armato; i materiali di rivestimento sono: serizzo per le parti di zoccolatura, klinker color sabbia ed intonaco rosso scuro per le facciate, legno per i serramenti.
Lo spazio a terra tra i due edifici, ad esclusione dei percorsi e del cortile della zona artigianale, è sistemato a giardino piantumato con le essenze descritte nei disegni.
Progettista:
Arch. Roberta Contrino
Arch. Andrea Incerti
Strutturista:
Ing. Marco Contrino
Ing. Giorgio Brigatti
Direzione Lavori:
Ing. Angelo Contrino
Committente:
BRIO edilizia s.r.l.
Impresa e impiantisti:
ALFA s.r.l.
progetto:
1998 -1999
realizzazione:
luglio 2000- luglio 2002
n° appartamenti: 27 (da 2 a 4 locali)
n° box per auto 32
Klinker color sabbia per il rivestimento delle facciate, beola grigio-chiaro per le parti di zoccolatura, intonaco color mattone per gli sfondati ed i terrazzi, serramenti in douglas; ringhiere in ferro color grigio chiaro
![]()
Via Francesco Soave, 9 – Milano
Tel 02.45471722
info@esecon.com









