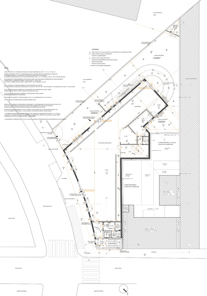
Via M. Bruto
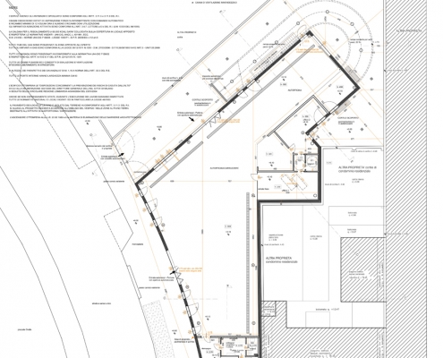
L’area di progetto si affaccia ( lato nord est) su piazza Ovidio e per una piccola parte di circa 8 metri su via Marco Bruto.
In generale la zona è caratterizzata da un intenso traffico veicolare soprattutto sull’asse viario via Bruto/via Mecenate in entrambe i sensi di marcia. Nei dintorni sono presenti alcune infrastrutture quali l’ortomercato il non lontano Aeroporto di Linate e vari depositi merci per automezzi .
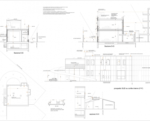
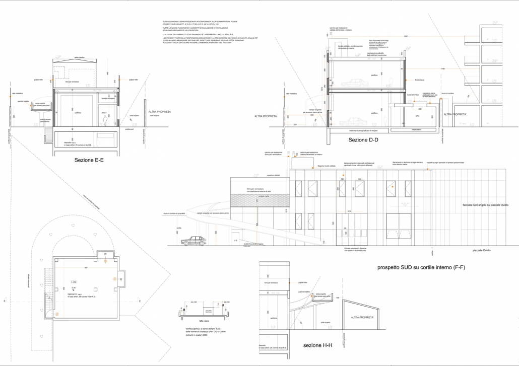
L’edificio di progetto è costituito da un unico corpo di fabbrica alto 11,25 circa (quota di copertura) a formare una ELLE. Lo spazio interno è articolato su due piani con una copertura praticabile
Dal cortile è possibile sia accedere all’interno del piano terra che salire al piano primo tramite una rampa scoperta. Mediante una scala posizionata sotto il primo tratto della rampa, si accede al piano interrato costituito da un piccolo deposito s.p.p . Nel cortile vi è anche un deposito rifiuti solidi urbani indipendente di circa mq. 10.
L’edificio di progetto ricostituisce un pezzo di cortina edilizia completando una porzione del lato ovest della piazza, coprendo il frontespizio cieco creato dal nuovo condominio di via Bruto al civico n° 30. Il progetto riqualifica uno spazio che allo stato attuale è carente e incompiuto.
Il fronte verso la piazza ed quello interno verso il cortile sono composti da pannelli prefabbricati in c.a. verniciati con un finitura ad effetto metallico in due diverse tonalità colori di blu .
Attraverso l’ingresso situato all’angolo con la via Marco Bruto gli addetti ed il pubblico accedono direttamente alla distribuzione verticale che serve il piano superiore i servizi e gli spogliatoi.
L’edificio è servito da un vano scala , un ascensore e , per le auto, da una rampa posta all’interno del cortile. Al piano terra è situato il reparto carrozzeria e revisione scarichi per auto con servizi igienici e spogliatoi per 4 addetti. Sono presenti inoltre due locali ad uso ufficio con relativo servizio igienico. Il piano superiore viene è attrezzato per la verniciatura delle auto.
Il colore dell’edificio (due tonalità di blu) è stato scelto per richiamare il colore di bandiera della Ditta (ACI) che supporta le attività di revisione delle auto. I serramenti di due diverse dimensioni sono poste all’interno in posizione tale che la luce non interferisca in modo diretto sulle attività lavorative ma che garantisca in ogni modo una illuminazione ed un’aerazione naturale .









