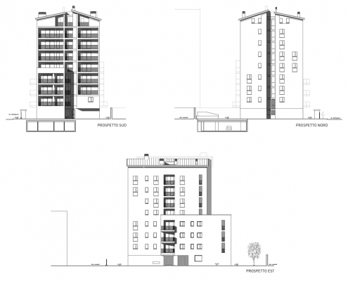
Un edificio a destinazione residenziale di nove piani fuori terra.
L’edificio è isolato all’interno dell’area, arretrato sul fronte stradale di via A. Martignoni di m. 4,50 nel punto più vicino al confine.
L’edificio servito da un unico vano scala è articolato in due volumi leggermente slittati uno rispetto all’altro in senso longitudinale, così da articolarne la massa e rendere più snella la dimensione trasversale; un corpo basso (4 piani f.t.), rivestito in pietra naturale, si prolunga nella zona a sud dell’area e definisce l’allineamento le il rapporto con l’asse stradale.
L’orientamento è tale da consentire le migliori condizioni di esposizione solare per gli ambienti, privilegiando per l’affaccio dei soggiorni il lato sud, caratterizzato dal disegno a telaio delle profondelogge.
L’ingresso principale pedonale e quello carraio sono posizionati su via Martignoni, .
Al piano terra sono presenti, oltre ai locali di servizio, nove boxes all’interno dell’edificio e 10 posti auto coperti da un pergolato.
L’intero complesso, realizzato con struttura in cemento armato e muratura in laterizio è rivestito in pietra grigia per le parti di zoccolatura, klinker color mattone scuro ed intonaco chiaro per le facciate, alluminio per i serramenti.
Lo spazio aperto di pertinenza dell’edificio ad esclusione dei percorsi è sistemato a giardino piantumato.
Progettista:
Arch. Roberta Contrino
Arch. Andrea Incerti
Strutturista:
Ing. Marco Contrino
Ing. Giorgio Brigatti
Direzione Lavori:
Ing. Angelo Contrino
Committente:
Residenza Correnti s.rl.
Impresa e impiantisti:
ALFA s.r.l
progetto:
2000 -2001
n° appartamenti: 19 (da 2 a 5 locali)
n° box per auto 36
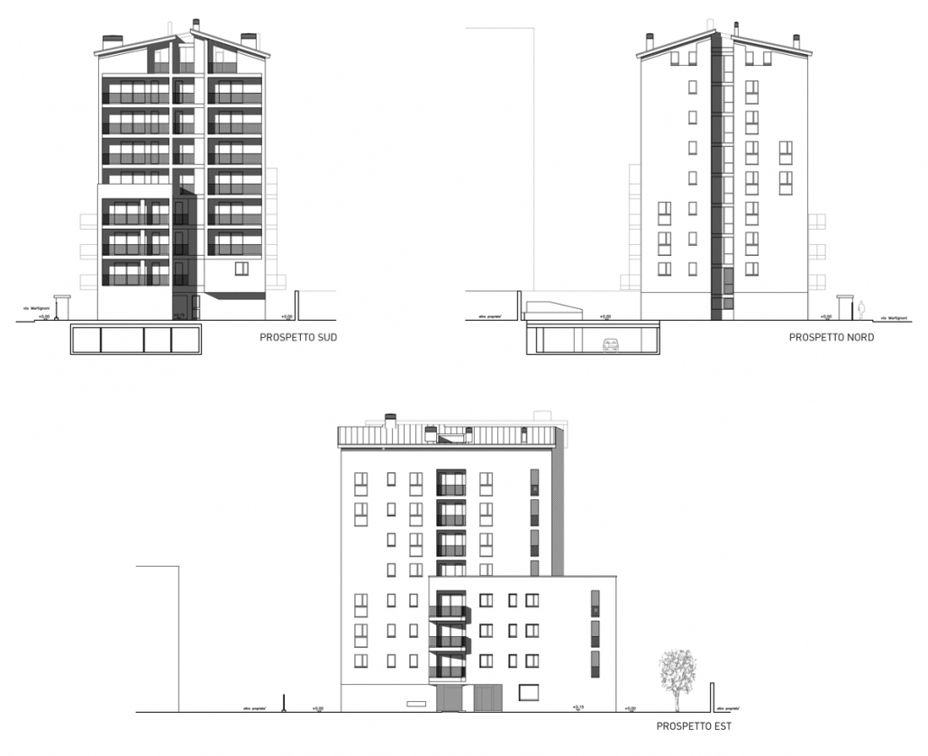
Klinker color terra bruciata per il rivestimento delle facciate del corpo alto e pietra aurisina chiara per il corpo basso, cemento martellinato per le parti di zoccolatura, intonaco color grigio tortora per gli sfondati ed i terrazzi, serramenti in douglas naturale; ringhiere in ferro color grigio scuro
![]()
Via Francesco Soave, 9 – Milano
Tel 02.45471722
info@esecon.com












