L’intervento riguarda la realizzazione di un edificio a destinazione residenziale di 5 piani fuori terra più un piano sottotetto senza permanenza di persone; inoltre è previsto un piano interrato, ad uso autorimessa e cantine.
L’intervento dimostra l’adeguatezza del progetto al contesto riconoscendone come caratteristica saliente e valore la continuità della cortina edilizia che viene proseguita tramite il fronte continuo come da prescrizioni di PRG. La presenza di un’importante area verde di consistenti dimensioni e di notevole valore paesaggistico è stata interpretata e valorizzata nel progetto tramite il disegno del fronte loggiato, elemento di spicco del progetto assieme alla copertura a volta.
La volta di copertura è il risultato di un accurato studio teso ad armonizzare le altezze e la sagoma del corpo di raccordo con l’edificio di via Marignano 3, con le dimensioni ed il volume dell’edificio principale. Questa tipologia di copertura è gia presente nel contesto, nel complesso edilizio a nord ovest dell’intervento; viene utilizzata nel progetto, calibrata nel profilo e nelle proporzioni, per attenuare la consueta separazione tra corpo dell’edificio e volume di copertura, e fondere queste due parti in una sagoma unitaria, scelta dettata dalle modeste dimensioni dell’intervento e dalla volontà di realizzare un fronte unico e compatto.
Il fronte sud-est dell’edificio è caratterizzato dall’ampia superficie rivestita in pietra di fabbrica beige punteggiata da aperture di piccole dimensioni, volutamente in contrasto con il passo delle logge sul fronte principale per evidenziare la gerarchia e la scala degli affacci, che evidentemente non possono essere equivalenti.
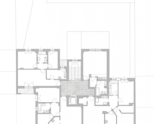
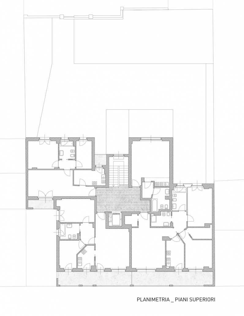
L’edificio è servito da un unico vano scala posizionato centralmente con i pianerottoli prospicienti sul cortile interno. L’orientamento è tale da consentire le migliori condizioni di esposizione solare per gli ambienti, privilegiando per le zone giorno il lato affacciato verso il nuovo verde urbano recentemente risistemato. L’ingresso pedonale è posizionato su via 8 ottobre 2001 così come quello carraio di accesso all’autorimessa e al cortile.
L’intero complesso sarà realizzato con struttura in cemento armato; i materiali di rivestimento saranno: pietra di fabbrica beige/grigio per la maggior superficie di tutte le facciate, grigio chiaro per il fronte loggiato sulla via 8 ottobre 2001 e grigio scuro per le parti di zoccolatura, atrio interno e di servizio al piano terra. L’intonaco di color rosso bruno verrà utilizzato per le pareti di sfondo delle logge e del fronte verso il cortile.
Lo spazio aperto di pertinenza dell’edificio ad esclusione dei percorsi sarà sistemato a giardino piantumato con le essenze descritte nei disegni.
Progettista:
Arch. Andrea Incerti
Arch. Roberta Contrino
Strutturista:
Ing. Marco Contrino
Ing. Giorgio Brigatti
progetto:
Giugno 2006 novembre 2006
realizzazione:
Solo progetto
1 corpi scala / ascensore
n° appartamenti: 17 (da 1 a 4 locali)
n° box per auto 22
Lastre in pietra di fabbrica per il rivestimento delle facciate ,per le parti di zoccolatura, pavimentazione atrio, intonaco color mattone per gli sfondati ed i terrazzi, legno laccato chiaro per i serramenti, tapparelle color dei serramenti, parapetti a bacchette in ferro verniciato. Rivestimento copertura in alluminio color bronzo.
![]()
Via Francesco Soave, 9 – Milano
Tel 02.45471722
info@esecon.com






